1913 Schloss Pückler in: Rogau Rosenau (Rogow Sobocki)
      
 
 
Die Postkarte zeigt das Schloss des Reichsfürsten Graf von Pückler, auf Rogau-Rosenau, sowie die katholische Kirche des Orts. Mit welchen der manigfaltigen Angehörigen der Fürstenfamilie Pückler das Schloss in Rogau-Rosenau in Verbindung gebracht werden muß, konnte bisher nicht eindeutig festgestellt werden.
Die Chronik von Rogau Rosenau weist darauf hin, dass 1792 Graf Erdmann III.von Pückler und Freiherr von Gröditz in Rogau Rosenau geboren wird. Seine Familie endet mit dem Sohn Graf Erdmann IV.von Pückler im Jahr 1888. Dieser ist zwar verheiratet, besitzt aber keine Kinder..
 
Nach den Angaben des Güteradressbuchs von 1937 befindet sich das Schloss seit 1852 im Familienbesitz und ist 1937 im Besitz von Wilhelm August Graf von Pückler auf Schedlau und Rogau Rosenau.
 
Zeit
Besitzer
Bemerkung
1450
Heinze von Reichenbach
Erbherr von Klettendorf und Rogau
.. ein gemauerter Gutshof mit Turm, umgeben von einem Wassergraben entsteht. Mit seinem Enkel Dipprand von Reichenbach stirbt 1554 oder 1555 die Rogauer Linie aus. Das Gut fällt den drei Töchtern Dipprands zu die verheiratet von Tschech, Tschischewitz und Gellhorn hießen.
1558
Ernst von Gellhorn
zu Alten Grottkau
.. das Schloss wird umgebaut, es entsteht der Westflügel.
.. im 30 jährigen Krieg (1618-1648) brennt es ab, wird aber in seiner ursprünglichen Form bald wieder aufgebaut.
1765
Familie Schickfuss
.. Napoleonische Befreiungskriege 1813-1815 (1813 Seegnung des Lützowschen Freiheitscorps in der ev.Kirche)
 
 
Hier beginnt das Durcheinander ..
1829
Familie Pückler
.. um 1829 wird Familie Pückler Besitzer des Schlosses in Rogau Rosenau
Quelle Bild: Zamek w Rogowie ..................... welcher Pückler ???
1852
 
.. Familienbesitzt von Pückler seit 1852.
Quelle schlesisches Güteradressbuch 1937 ....... vorher kein Familienbesitz ???
1792
Graf Erdmann III. von Pückler und Freiherr von Groditz
 
* 04.04 1792 in Rogau Rosenau bei Breslau
 
 
† 04.11.1869 in Schedlau, Oberschlesien
 
 
oo 16.04.1826

Johanna, geb. Freiin von Eckardstein

* 28.10.1808 in Dessau
† 25.02.1879 in Schweidnitz
 
Kinder:
Aus der Ehe gehen sieben Töchter und ein einziger Sohn, Erdmann IV. Graf von Pückler (1832–1888) hervor.
 
 
Eltern:
Erdmann III. entstammt der schlesischen Linie der Grafen von Pückler auf Schedlau.
Vater   Erdmann II. Graf von Pückler (1755–1819).
Mutter Johanna Friederike Margarethe (1763–1834), Freiin von Czettritz u. Neuhaus auf Seitendorf.
 
 
Erdmann III. war ein deutscher Standesherr, preußischer Landwirtschaftsminister und Politiker. Er tritt in den preußischen Militärdienst ein und ist 1805/06 Kadett. Im Jahr 1813 wird er in den Befreiungskriegen gegen Napoleon I. verwundet und tritt 1814 in das Zivilleben über. Er ist Rittergutsbesitzer und Landwirt in Schlesien. Er besaß die Herrschaft Schedlau. Dort ließ er das Schloss in den 1850er Jahren erheblich umgestalten. Auch andere Besitzungen gehörten ihm. Außerdem war er ab 1815 Landesältester des Kreises Falkenberg. Die Fläche seiner in diesem Kreis gelegenen „Herrschaft mit den Ortschaften Schedlau, Mullwitz, Guhrau, Heidersdorf und Groditz“ wurde im November 1858 mit „8074 Morgen“ angegeben.
Später trat er in den preußischen Verwaltungsdienst ein. Er war 1828 Regierungsrat bei der Generalkommission in Berlin. Zwischen 1835 und 1858 amtierte er als Regierungspräsident in Oppeln.
Seit 1840 gehörte Graf Pückler dem Provinziallandtag Schlesien an. Er spielte dort eine bedeutende Rolle. Seit 1842 war er Mitglied der Vereinigten Ausschüsse der Provinziallandtage.
Im August 1848 sollte er zum Rücktritt als Regierungspräsident bewogen werden, blieb aber im Amt. Durch allerhöchsten Erlass vom 6. November 1858 (Amtsantritt: 8. November) wurde er preußischer Landwirtschaftsminister im Ministerium der Neuen Ära und behielt das Amt bis zum Ende der Neuen Ära im März 1862.
Im März 1859 gibt Pückler den Anstoß zur Wiederbesetzung der seit Oktober 1854 „unbesetzt gebliebenen außerordentlichen Professur der Landwirthschaft“ an der Berliner Universität. Dabei unterstützte er die Bewerbung des Privatdozenten Carl Schulz-Fleeth, dem im Januar 1860 diese Stelle verliehen wird.
In den Jahren 1849 und 1850 ist er Mitglied der ersten Kammer des preußischen Landtages und ab 1854 Mitglied des Herrenhauses.
 
1832
Graf Erdmann IV. von Pückler
 
* 05.11.1832 in Breslau
 
 
† 12.11.1888 in Breslau
 
 
oo 1866
Adelheid Gräfin von Haugwitz, Tochter von Graf Kurt von Haugwitz. (*1845 +1911).
* 28.10.1808 in Dessau
† 25.02.1879 in Schweidnitz
 
Kinder:
Die Ehe bleibt kinderlos. --> ?????????????????????????? Rogau Rosenau
 
 
Erdmann IV. war ein deutscher Rittergutsbesitzer und Parlamentarier. Er studierte an der Ruprecht-Karls-Universität Heidelberg Rechtswissenschaften. 1854 wurde er Mitglied des Corps Saxo-Borussia Heidelberg. Nach Abschluss des Studiums absolvierte er das Referendariat und legte das Assessorexamen ab. Als Assessor a.D. wurde er Besitzer der Herrschaft Schedlau. Er war Landesältester und Major a.D. Von 1870 bis zu seinem Tod 1888 gehörte er dem Preußischen Herrenhaus an.
 
1851
Maximilian Graf von Pückler zu Rogau Rosenau
Quelle: Adressbuch des schlesischen Grundbesitzes 1910 (Rogau Rosenau)
 
* 1851
 
 
† 1921
 
 
oo unbekannt
Helene Pauline Charlotte Gräfin von der Schulenburg (1866–1927)
 
Kinder:
unbekannt
 
 
Rittergutsbesitzer zu Rogau bei Breslau: Kgl. Hofmarschall a. D., Major a. D.
Rittmeister a. D., Hofmarschall Wilhelms II., später auch Oberküchenmeister; zuletzt 'Wirklicher Geheimer Rat' (= Geheimrat)
 
xxxx
Wilhelm August Graf von Pückler auf Schedlau und Rogau Rosenau
Quelle: schlesisches Güteradressbuch 1937 (Rogau Rosenau)
 
* unbekannt
 
 
† unbekannt
 
 
oo 19.07.1924 in Löwenbruch
Hedwig "Hedda" Johanna Susanne Margarete Klothilde von dem Knesebeck
* 04.04.1900 Kassel, Hessen, Deutschland
† unbekannt
Vater:   Achaz von dem Knesebeck, * 08.08.1867 Löwenbruch, † unbekannt
Mutter: Nelly von Elpons, * 27.01.1878 Thorn, † unbekannt
 
siehe auch:
https://de.wikipedia.org/wiki/Rog%C3%B3w_Sob%C3%B3cki
 
 
Das Schloss des Fürsten Pückler in Rogau Rosenau nach dem 2.Weltkrieg.
 
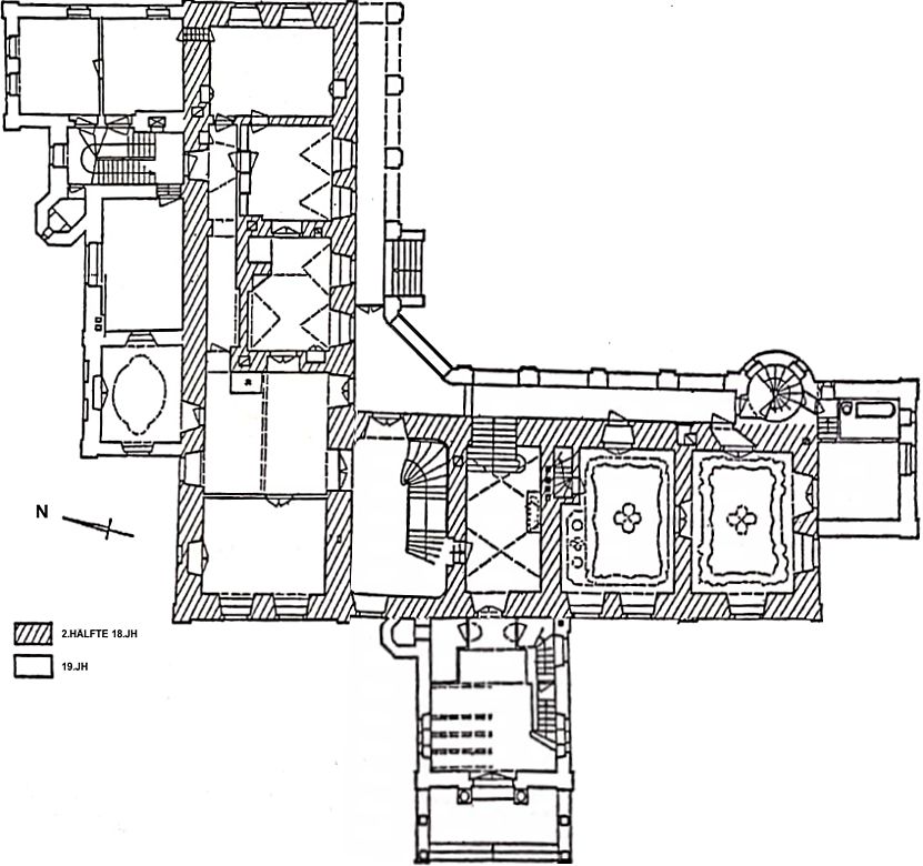
Schloss (ehemal. Wasserburg)
 
In der Mitte des Ortsteils Rogau. Besitzer: Graf Pückler. Familienbesitz seit 1852,
 
Baugeschichte: Seit 1450 wird Heinze von Reichenbach als Erbherr von Klettendorf und
Rogau genannt. Mit seinem Enkel Dipprand (+1554 od.55) starb die Rogauer Linie
aus. Das Gut fiel der 3 Töchtern Dipprands: verm. von Tschech, Tschischwitz und
Gellhorn zu. 1558 erkaufte es Ernst von Gellhorn zu Alten Grottkau. Bis in die
1.Hälfte des 18.Jhs. saßen die Gellhorns auf Rogau. Die durch einen modernen Um-
bau verdeckten älteren Bauteile [hakenförmige Anlage] deuten auf einen ersten Bau-
vorgang aus der 2.Hälfte des 16.Jhs. Veranlassung dürfte der Besitzübergang an die
Gellhorns gewesen sein. 1572 schrieb Friedrich v. Gellhorn auf Rogau an Heinrich von
Senitz, Hauptmann von Strehlen, er habe „dem Scholzen von Senitz den Baw alhir
verdingt“ und bittet nun Senitz zu verlassen, daß der Scholz den Bau fertig machen
„und ein tag oder etzlich alhier beim abbinden sein möchte“, Ob der fragliche Bau der
Schloßbau ist, geht aus dem Schreiben nicht mit Sicherheit hervor. Im 30-
jährigen Krieg wurde das Gut Rogau geplündert und niedergebrannt. 1640 berichtet
Joachim v. Nimitz: „daß Gutt Rogau ganz in der Asche lieget“ und „daß wüste Gutt
Rogau.“ Das Gut dürfte bald danach wieder aufgebaut worden sein. Um 1760/80
innerer Ausbau des Schlosses. Alte Ansicht des Gebäudehofes auf einer Porzellantasse
von 1813 im Scloss: zweiflügelige Anlage mit Arkaden und umlaufender Holzgalerie.
Eine größere Erweiterung erfuhr das Scloß um 1860: langestreckter Anbau auf der
N-Seite, ferner Anbauten im W (Turm), S und O (Treppentürmchen). Dabei wurden
die Fassaden durch einheitliche Ausschmückung mit Neurenaissancegiebeln dem Alt-
bau angeglichen. 1913 Innenveränderungen, vor allem der Turmhalle.
 
 
 
      
wohnorte.knobelauflauf.de